730 mq
4
3
Garage/Posto Auto
Giardino privato
Centralizzato - Contacalorie
E

Descrizione

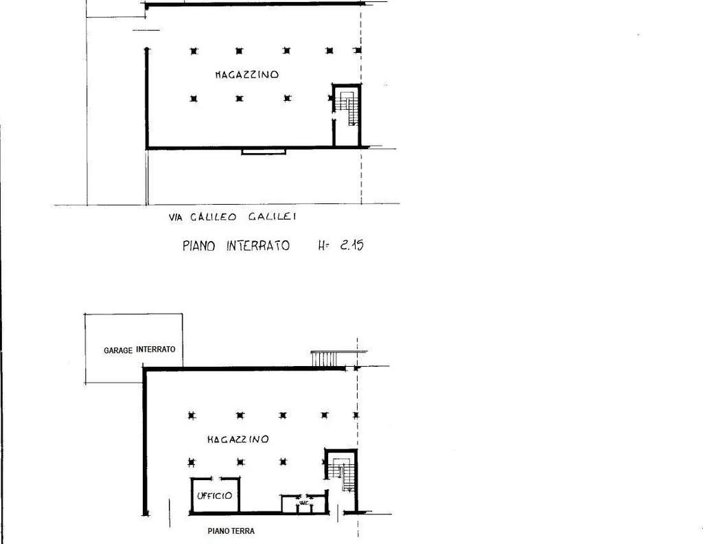
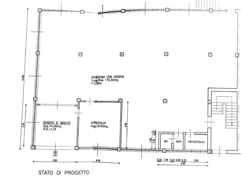
Rif. RV4294 - Reggio Emilia, Meridiana - Porzione Abbinata con Laboratorio/Magazzino( Rif. RV4294) Porzione di casa abbinata con laboratorio e magazzino ed area cortiliva privata, vari posti auto di proprietà e garage doppio in buonissime condizioni di manutenzione. L'immobile è stato edificato e successivamente ampliato tra la metà anni '60 e la fine degli anni '80 mantenendo negli anni una costante manutenzione che ne ha conservato le condizioni attuali. Al piano terra e interrato si trovano un laboratorio ed un magazzino di 470 mq commerciali, dei quali 230 mq si trovano al piano terra, ed un garage doppio di 50 mq commerciali. Al piano primo è presente l'appartamento di 210 mq , rinnovato anch'essi qualche anno fa, composto da ingresso, cucina con balcone, tinello, ampio soggiorno, ripostiglio, disimpegno zona notte, 4 camera da letto matrimoniali, 2 bagni, una lavanderia ed una comoda veranda coperta. Dal primo piano si raggiunge il piano mansardato, attualmente con scala retrattile, dove è eventualmente possibile realizzare una mansarda ed ulteriori vani. Sul fronte dell'immobile sono presenti 5 posti auto privati mentre sul retro si trova un'area cortiliva privata di 220 mq circa. Possibilità di un'ulteriore laboratorio/magazzino adiacente, di uguale metratura, da quantificare a parte. Posizione vicina al centro storico e servita dal trasporto pubblico, nei pressi ci sono altre attività e numerose abitazioni. Soluzione ideale per artigiani o liberi professionisti che possono avere abitazione e magazzino/attività adiacente. Possibilità di effettuare cambio d'uso per diverse attività (scuole, laboratori, studi medici, studi professionali. ) Ottimo anche da investimento per affittare eventualmente magazzino e abitazioni congiunte o separate ! REFERENTE DANIELA: 3475020078.

Altre caratteristiche

Stato Immobile
In buone condizioni
Anno costruzione
1967
Vani
6
Tipo di cucina
Abitabile
Balconi
1
Terrazze / Logge
1
Piano
Terra
Piani totali della palazzina
2
Ascensore
Tipologia Immobile
Villa abbinata
Categoria Immobile
Case e Appartamenti
Contatta Agenzia
Proposto da: PIAZZA AFFARI Servizi Immobiliari

Quotazioni immobiliari per Via Brigata Reggio - Reggio Emilia