3
Area parcheggio

Descrizione

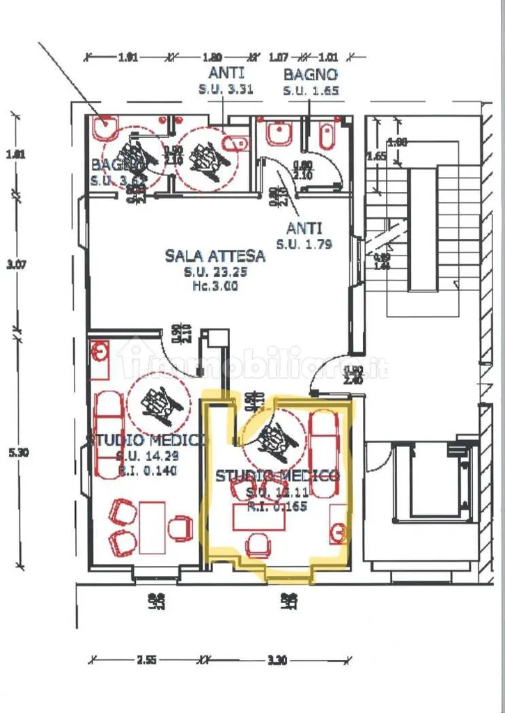
Scopri un locale arredato ad uso studio medico, situato in una posizione strategica in via Montecorno a Parma. Questo spazio, recentemente ristrutturato e conforme ai requisiti dell'AUSL, è perfetto per medici specialisti, fisioterapisti, osteopati, psicologi e nutrizionisti. Composto da due locali medici ben attrezzati, di cui uno già occupato, offre anche una sala d'attesa comune e doppi servizi, garantendo un ambiente professionale e accogliente. Situato al primo piano, l'ufficio è facilmente accessibile grazie all'ascensore e all'accesso per carrozzine. Il cortile privato videosorvegliato con cancello elettrico offre ulteriore sicurezza e tranquillità. Inoltre, il posto macchina incluso nel prezzo rende questo ufficio ancora più comodo. A pochi minuti dal centro storico di Parma e ben collegato con mezzi pubblici e auto, questo ufficio è la scelta ideale per chi cerca un contesto moderno e professionale. L'affitto è di €700 tutto compreso, con utenze e servizi inclusi. Non perdere l'opportunità di avviare la tua attività in uno spazio così ben posizionato e attrezzato!

Planimetrie

Altre caratteristiche

Area cortiliva
Contratto di affitto
A norma di legge
Categoria Immobile
Commerciali e Attività
Tipologia Immobile
Ufficio / Studio
Stato al rogito
Libero
Metri Quadri
13 mq
Posto auto
Presente
Condizionamento
Installato
Riscaldamento
Autonomo
Piani totali della palazzina
3
Piano
1
Bagni
2
Stato Immobile
Ristrutturato
Contatta Inserzionista
Rif. Immobile:
Proposto da: Gmed
Tel: