150 mq
4
2
Garage/Posto Auto
Giardino privato
Autonomo
B

Descrizione

Rif. 005/SC -

Per info: 388/7909543 - Nelle immediate adiacenze di Baganzola allì'interno di piacevole corte completamente restaurata, proponiamo porzione di casa di testa, di recente realizzazione, in classe energetica B, con ampio giardino.

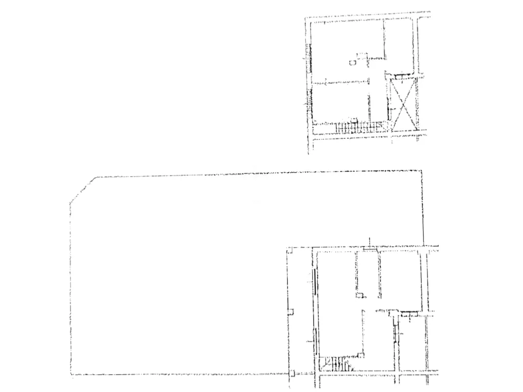
L'immobile è sviluppato su due livelli:
al piano terra soggiorno con angolo cottura, due camere e bagno;
al piano superiore mansdardato due camere e bagno. 
Completa la proprietà un doppio posto auto.


Precisiamo che l'indirizzo pubblicato potrebbe non corrispondere all'esatta localizzazione dell'immobile al fine di tutelare la privacy del venditore.

Riferimento: 005/SC
Per informazioni: Mediatori Associati Parma srl - Tel. 388/7909543 oppure 0521/281131

SIAMO A DISPOSIZIONE PER UNA VALUTAZIONE GRATUITA DEL TUO IMMOBILE!

Planimetrie

Altre caratteristiche

Stato Immobile
In buone condizioni
Vani
5
Tipo di cucina
Angolo Cottura
Posto auto
Presente
Metratura giardino
250
Piani totali della palazzina
2
Condizionamento
Installato
Spese condominiali
€ 350
Stato al rogito
Libero
Tipologia Immobile
Porzione di casa
Categoria Immobile
Case e Appartamenti
Contatta Agenzia
Proposto da: MEDIATORI ASSOCIATI

Quotazioni immobiliari per Baganzola - Baganzola - Parma