250 mq
4
2
Garage/Posto Auto
Centralizzato - Contacalorie
G

Descrizione

Rif. 007/RB -

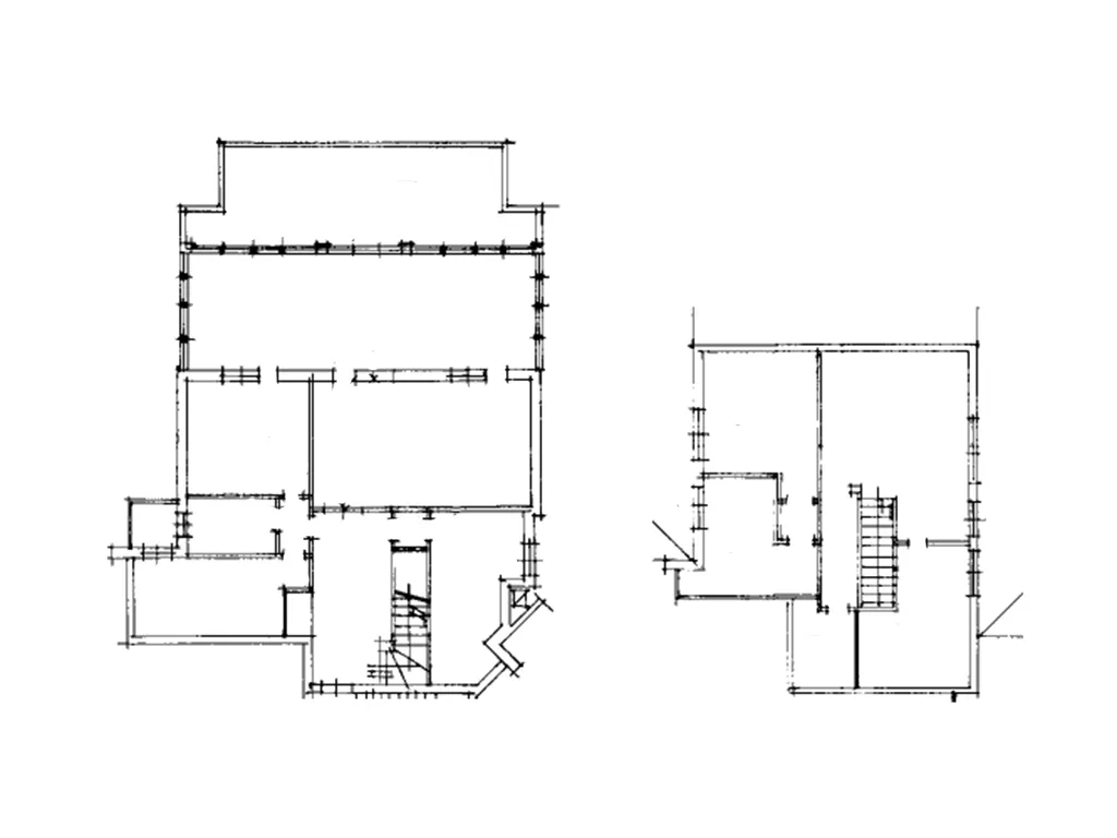
Per info: 335/5354282 - Montebello, attico con 50 m² di terrazzo, in zona residenziale, disposto su due livelli, composto da: ingresso, salone, cucina abitabile, due camere matrimoniali, bagno, ripostiglio, veranda e splendido terrazzo; al piano superiore ampia mansarda con salotto, due camere, cabina armadi e bagno.
Completano la proprietà un vano cantina e garage.


Precisiamo che l'indirizzo pubblicato potrebbe non corrispondere all'esatta localizzazione dell'immobile al fine di tutelare la privacy del venditore.

Riferimento: 007/RB
Per informazioni: Mediatori Associati Parma srl - Tel. 335/5354282 oppure 0521/281131

SIAMO A DISPOSIZIONE PER UNA VALUTAZIONE GRATUITA DEL TUO IMMOBILE!

Planimetrie

Altre caratteristiche

Stato Immobile
Da ristrutturare
Anno costruzione
1970
Vani
11
Tipo di cucina
Abitabile
Terrazze / Logge
1
Metratura totale terrazze / logge
50
Dettaglio garage
Singolo
Piano
6
Piani totali della palazzina
6
Ultimo piano
Condizionamento
Installato
Spese condominiali
€ 1800
Ascensore
Cantina
Ripostiglio
Mansarda
Stato al rogito
Libero
Tipologia Immobile
Appartamento
Categoria Immobile
Case e Appartamenti
Contatta Agenzia
Proposto da: MEDIATORI ASSOCIATI

Quotazioni immobiliari per Via Montebello - Montebello - Parma