900
30
Area parcheggio
Area servizi/spogliatoi

Descrizione

Rif. 461 -

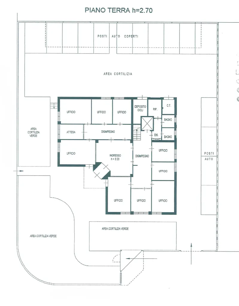
Palazzina uffici e capannone zona Manara Parma.

Complesso immobiliare di recente costruzione di complessivi 1.550 mq circa in zona sud-ovest a Parma composto da: palazzina uffici e capannone.
Palazzina direzionale indipendente interamente ristrutturata nel 2010 con impianti di ultima generazione per risparmio energetico riscaldamento e raffrescamento geotermico con copertura del tetto sia della palazzina che il capannone di impianti fotovoltaici con pompa di calore.

La palazzina interamente recintata sui 4 lati si sviluppa su 3 piani servita da ascensore, di 300 mq a piano per un totale di 900 mq dove all’interno e stata suddivisa da divisori in cartongesso e facilmente removibili, ricavando 10 uffici e 2 servizi a ogni piano, in oltre 15 posti auto all’interno dell’area cortiliva con accesso tramite portone carraio automatizzato. 
Capannone ad uso magazzino di 650 mq adeguato all’antisismica, tre portoni a raso, predisposizione per posa trave carroponte e eventuale soppalco, ampia area esterna per parcheggi privati e zone a verde.C.E. C  Euro 1.800.000

 

 

Planimetrie

Altre caratteristiche

Area cortiliva
Categoria Immobile
Commerciali e Attività
Tipologia Immobile
Capannone
Stato al rogito
Libero
Metri Quadri
1550 mq
Ultimo piano
Area uffici
Magazzino
Pannelli solari / fotovoltaico
Classe energetica
C
Posto auto
Riservato
Condizionamento
Predisposto
Riscaldamento
Pompa di calore
Piani totali della palazzina
3
Piano
Terra
Bagni
6
Stato Immobile
Ristrutturato
Contatta Agenzia
Proposto da: STUDIO IMMOBILIARE SAGLIETTI GIAN CARLO

Quotazioni immobiliari per Parma