172 mq
3
3
Giardino privato
Arredato
Autonomo
E

Descrizione

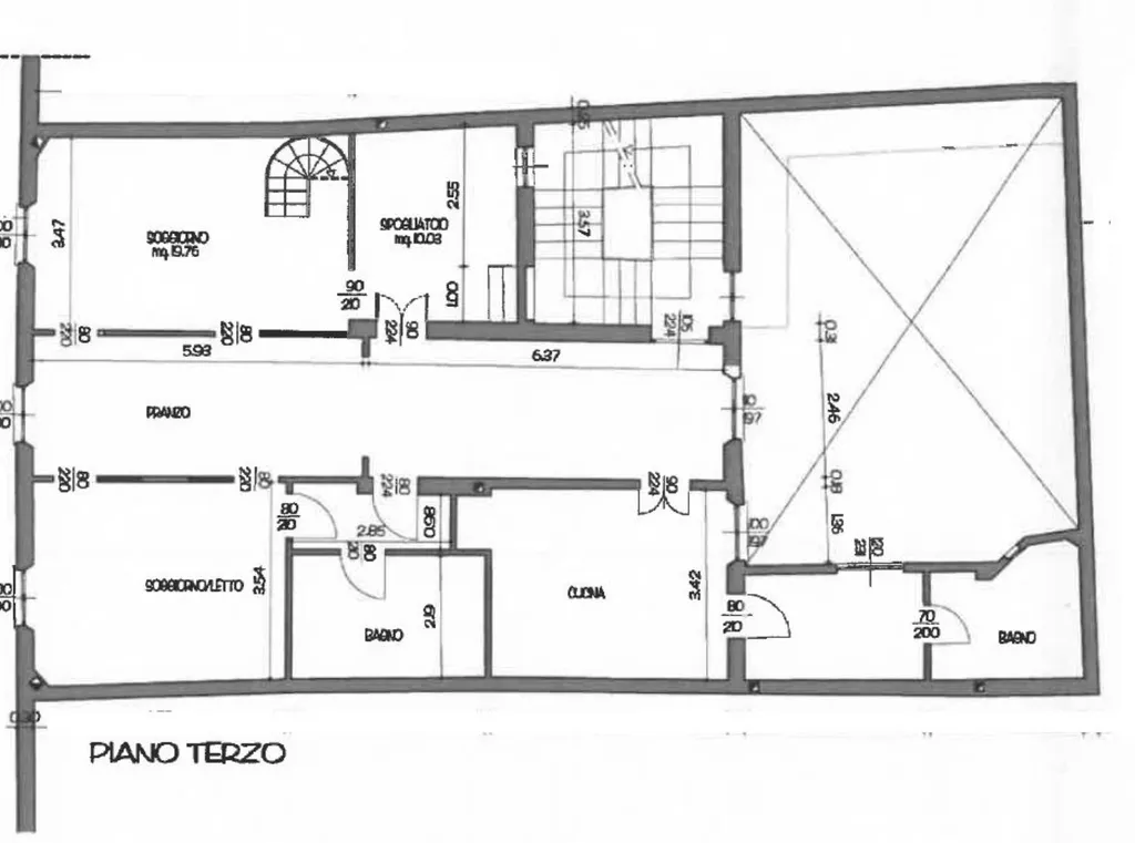
Rif. RB8186 - Centro storico - Maisonette di pregio (Rif.RB8186) Appartamento di oltre 170 metri quadrati con affaccio sulla via Emilia, molto luminoso, con alti soffitti affrescati, completamente ristrutturato ed inserito in palazzina storica con androne affrescato e due cortili interni. Il sapore unico dell’appartamento si accompagna al confort e alle finiture di lusso e ampi spazi versatili: oltre ai soffitti affrescati (cucina compresa), un assito di abete e il cotto originale del ‘700 dialogano con una scala di cristallo che porta alla zona notte e con il bagno principale rifinito con boiserie e stucco veneziano. L’appartamento si trova al terzo e al quarto piano, con vista sull’arco napoleonico e i suoi fregi. Al terzo piano, si è accolti da un ampissimo e luminoso ingresso / sala da pranzo (di oltre 10 mt di lunghezza), su cui si affacciano l’ampia cucina, il soggiorno, una camera/studio con accesso privato a cabina armadio e all’ampio bagno. Un secondo bagno è collegato con una piccola camera di servizio con ampia portafinestra. Completa il piano un ampio locale guardaroba / palestra. Al piano superiore, mansardato, si trovano due ulteriori camere, una matrimoniale, l'altra singola e il bagno. Due cantine completano la proprietà. La palazzina è ben abitata e situata nel pieno centro storico di Reggio Emilia. Possibilità di realizzare l’ascensore e di avere 2 unità abitative distinte e indipendenti . Consegna immediata. Classe energetica E. Per informazioni e appuntamenti Sede Via Cadoppi 8/B 0522512431 (anche WhatsApp) - segreteria@piazzaffarisrl.it

Video

Virtual Tour

Altre caratteristiche

Stato Immobile
In buone condizioni
Anno costruzione
1800
Vani
6
Tipo di cucina
Abitabile
Balconi
1
Terrazze / Logge
1
Piano
3
Piani totali della palazzina
4
Spese condominiali
€ 140 €/mese
Tipologia Immobile
Appartamento
Categoria Immobile
Case e Appartamenti
Contatta Agenzia
Proposto da: PIAZZA AFFARI Servizi Immobiliari

Quotazioni immobiliari per Emilia San Pietro 59 - Reggio Emilia