91 mq
1
1
Centralizzato - Contacalorie
A4

Descrizione

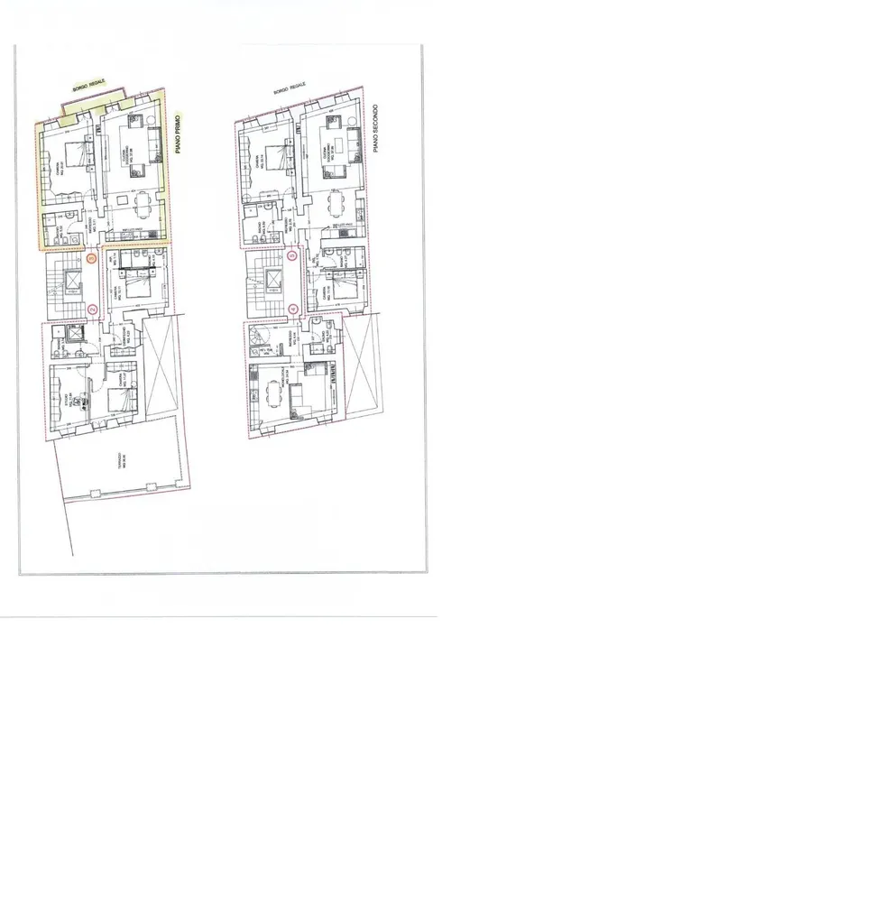
Rif. A 181 - BORGO REGALE, proponiamo luminoso appartamento di 91 mq., con balcone, posto al 1° piano, in classe A4., servito di ascensore. (Unità 3). All’ interno composto di: ingresso, grande zona living, affacciata sul balcone fronte Borgo Regale, zona cucina con angolo cottura. Area notte: comoda camera da letto matrimoniale affacciata sul balcone, bagno (senza finestra). Cantina al piano interrato, depositi cicli comune al piano terreno. PARMA, BORGO REGALE, in tipico palazzotto d’ epoca ottocentesca, composto da sole 6 unità abitative, proponiamo accogliente e luminoso appartamento con balcone affacciato sul borgo, posto al 1° piano. Il palazzo è stato oggetto di interventi di miglioria sismica, efficentamento energetico e risanamento conservativo, con cappotto alle murature perimetrali interne. Negli appartamenti prossimi alla consegna, vi è facoltà di personalizzarne le rifiniture. Il balcone affacciato sul borgo, le vecchie travature lignee a vista, il pavimento di Iroko spazzolato a listoni, le grandi porte finestre laccate, valorizzano ed illuminano gli ambienti, rendondoli eleganti ed esclusivi. Fra gli elementi di capitolato si sottolineano: l’ androne, la scala del palazzo e le soglie d’ ingresso degli appartamenti, saranno pavimentati in marmo Biancone; i serramenti esterni sono in legno lamellare, laccato, con triplo vetro e persiane, muniti di zanzariere ( esclusi i serramenti tondi) con doppia apertura; le porte interne sono del tipo laccato. La pavimentazione interna è prevista in legno di Iroko spazzolato, prefinito, a listoni lunghezza ml 1,50/1,80. Nei bagni è previsto un grès porcellanato dal grande formato, cm 60x60 o 60x 120. Impiantistica: il riscaldamento sarà centralizzato con contabilizzazione autonoma dei consumi riferiti sia al riscaldamento che all’acqua calda calda. L’impianto sarà del tipo a pavimento (riscaldamento e raffrescamento) con impianto di deumidificazione canalizzato. La caldaia sarà in pompa di calore con un supporto a gas metano. Il palazzo è dotato di impianto fotovoltaico di circa 6KW che servirà le parti comuni. Gli appartamenti sono dotati di videocitofono, impianto di allarme per contatto sui serramenti con predisp. per il volumetrico interno. L’ impianto elettrico, avrà frutti e placche AVE, serie Domus, sanitari in porcellana bianca serie Galassia Eden. Il fabbricato sarà servito di antenna Tv centralizzata e parabola.

Altre caratteristiche

Stato Immobile
Ristrutturato
Anno costruzione
1800
Vani
2
Tipo di cucina
Aperta
Balconi
1
Piano
1
Piani totali della palazzina
4
Condizionamento
Installato
Ascensore
Tipologia Immobile
Appartamento
Categoria Immobile
Case e Appartamenti
Contatta Agenzia
Proposto da: BARONI LUXURY HOUSES

Quotazioni immobiliari per Borgo regale - Parma