225 mq
3
3
Giardino privato
Centralizzato - Contacalorie
A4

Descrizione

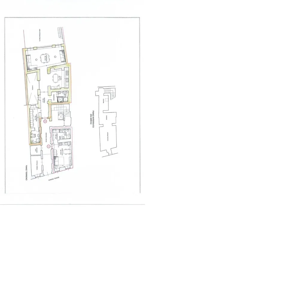
Rif. A 177 - BORGO REGALE, proponiamo esclusivo appartamento di 225 mq., in classe A4, disposto su 2 livelli, servito di giardino privato e grande terrazza di 40 mq., unità’ 2. All’ interno composto di: Piano Terra (mq 120): ampio ingresso, cucina abitabile affacciata sul cortile/cavedio privato di 14 mq.. Salone affacciato con 3 magnifiche vetrate sul giardino privato di 130 mq., con patio di 45 mq.. .Camera singola/studio con bagno, secondo servizio, lavanderia. Un comodo ascensore interno collega il piano superiore, dedicato alla zona notte. 1° Piano (78 mq.) Zona notte, (servita anche d’ingresso autonomo oltre al piano terreno ): camera da letto padronale con guardaroba e bagno dedicato, camera doppia e camera singola,, affacciate sullo splendido terrazzo di 40 mq., altro bagno. Cantina al piano interrato. Deposito cicli comune. PARMA, BORGO REGALE, in tipico palazzotto d’ epoca ottocentesca, composto da sole 6 unità abitative, proponiamo importante appartamento, affacciato sul giardino privato. La felice esposizione a sud-est, illumina di abbondante luce naturale tutti gli ambienti. Il piacevole affaccio sul verde, totalmente interno al Borgo, dona grande tranquillità e riservatezza all’ insieme. Il terrazzo a cielo aperto ne arricchisce la qualità e la vivibilità, completando la fruibilità delle parti esterne. Il palazzo è stato oggetto di interventi di miglioria sismica, efficentamento energetico e risanamento conservativo, con cappotto alle murature perimetrali interne. Negli appartamenti prossimi alla consegna, vi è facoltà di personalizzarne le rifiniture. Fra gli elementi di capitolato si sottolineano: l’ androne, la scala del palazzo e le soglie d’ ingresso degli appartamenti, saranno pavimentati in marmo Biancone; i serramenti esterni sono in legno lamellare, laccato, con triplo vetro e persiane, muniti di zanzariere ( esclusi i serramenti tondi) con doppia apertura; le porte interne sono del tipo laccato. La pavimentazione interna è prevista in legno di Iroko spazzolato, prefinito, a listoni lunghezza ml 1,50/1,80. Nei bagni è previsto un grès porcellanato dal grande formato, cm 60x60 o 60x 120. Impiantistica: il riscaldamento sarà centralizzato con contabilizzazione autonoma dei consumi riferiti sia al riscaldamento che all’acqua calda calda. L’impianto sarà del tipo a pavimento (riscaldamento e raffrescamento) con impianto di deumidificazione canalizzato. La caldaia sarà in pompa di calore con un supporto a gas metano. Il palazzo è dotato di impianto fotovoltaico di circa 6KW che servirà le parti comuni. Gli appartamenti sono dotati di videocitofono, impianto di allarme per contatto sui serramenti con predisp. per il volumetrico interno. L’ impianto elettrico, avrà frutti e placche AVE, serie Domus, sanitari in porcellana bianca serie Galassia Eden. Il fabbricato sarà servito di antenna Tv centralizzata e parabola.

Altre caratteristiche

Stato Immobile
Ristrutturato
Anno costruzione
1800
Vani
5
Tipo di cucina
Abitabile
Terrazze / Logge
1
Piano
Su più livelli
Piani totali della palazzina
2
Condizionamento
Installato
Ascensore
Tipologia Immobile
Appartamento
Categoria Immobile
Case e Appartamenti
Contatta Agenzia
Proposto da: BARONI LUXURY HOUSES

Quotazioni immobiliari per Borgo Regale - Parma