40 mq
1
1
Arredato
Autonomo

Descrizione

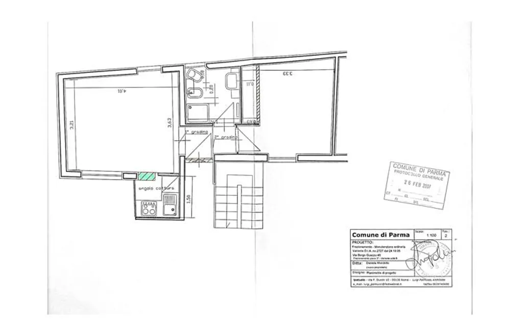
bilocale di 43 mq, ben distribuito e funzionale. L'appartamento è composto da una cucina abitabile con doppia finestra, una camera matrimoniale, un bagno con finestra e un comodo ripostiglio anch'esso dotato di finestra. Luminoso, grazie all'esposizione doppia a nord e sud che garantisce luce naturale tutto il giorno. La caldaia è a condensazione ed è stata istallata nel 2021, è molto ben tenuto Posto bici interno al condominio.

Altre caratteristiche

Stato Immobile
Ristrutturato
Vani
2
Tipo di cucina
Angolo Cottura
Piano
3
Piani totali della palazzina
3
Condizionamento
Installato
Ascensore
Tipologia Immobile
Appartamento
Categoria Immobile
Case e Appartamenti
Contatta Inserzionista
Rif. Immobile:
Proposto da: Mass casa
Tel: